
Standort
Beschreibung
Zum Verkauf steht hier ein 4-Familienhaus mit ansprechender Jugendstilfassade im beliebten Stadtteil Gera Ost-Viertel.
Das Haus erstreckt sich über 4 Etagen und präsentiert sich in einem gepflegten Zustand. Die Böden sind mit Laminat im den Wohnbereichen, Fliesen in Flur, Küche, Balkon und Bad ausgestattet. Das Treppenhaus ist mit robusten Granitstein verlegt, welches sowohl ästhetisch ansprechend als auch pflegeleicht sind.
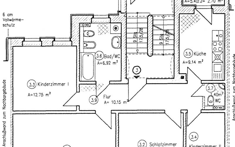
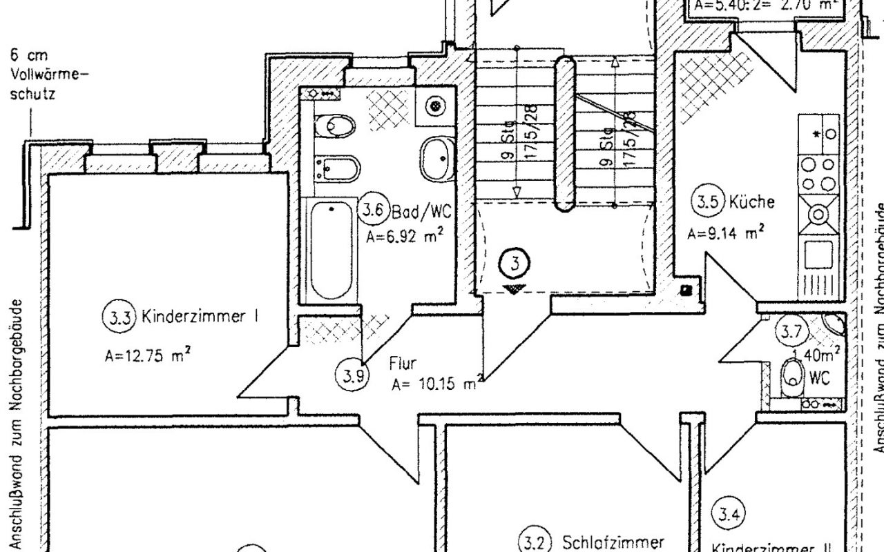
Bei den Wohnungen handelt es sich um eine 3-Raum-Wohnung im Erdgeschoss mit einer Wohnfläche von ca. 75,6 m² sowie drei großzügige 4-Raum-Wohnungen mit jeweils etwa 93 m².
Besonders hervorzuheben sind die hellen und geräumigen Wohnzimmer, die jeweils rund 25 m² groß sind. Jede Wohnung verfügt außerdem über einen eigenen Balkon in angenehmer Größe.
Die Wohnungen mit solcher Ausstattung bieten einer nachhaltige Vermietungssicherheit sowie Wertstabilität.
Die jährlichen Kaltmieteinnahmen für das Objekt belaufen sich im derzeitigen Zustand auf 24.780 €. Diese stabile Einnahmequelle bietet eine solide Basis für eine attraktive Rendite in Höhe von ca. 7,87%.
Lage
Das Mehrfamilienhaus befindet sich in Gera, einer Stadt mit einer ausgezeichneten Infrastruktur und vielfältigen Annehmlichkeiten. Die zentrale Lage ermöglicht einen einfachen Zugang zu öffentlichen Verkehrsmitteln, Schulen, Einkaufsmöglichkeiten und Freizeiteinrichtungen.
– Nur wenige Gehminuten vom Stadtzentrum entfernt, genießen Sie die Vorteile der urbanen Infrastruktur, während Sie in einer ruhigen und friedlichen Umgebung wohnen.
– Ausgezeichnete Verkehrsanbindung: Die Autobahn A4 und der Bahnhof Gera sind leicht erreichbar, was Pendlern und Reisenden entgegenkommt.
– In der Nähe finden Sie eine Vielzahl von Einkaufsmöglichkeiten, Restaurants und Cafés. Die beliebten Einkaufszentren und lokalen Märkte sind bequem zu Fuß erreichbar.
– Die Umgebung bietet zahlreiche Grünflächen und Parks, ideal für Spaziergänge, Joggen oder einfach zum Entspannen in der Natur.
– Gute Schul- und Kinderbetreuungseinrichtungen in der Nähe sorgen für eine optimale Umgebung für Familien.
– Medizinische Versorgung ist durch mehrere Kliniken und Praxen in der Nähe gewährleistet.
– Kulturelle Angebote wie Theater, Museen und Veranstaltungen sind nur einen kurzen Weg entfernt und bereichern das Stadtleben.
Diese Lage vereint Komfort, Sicherheit und Annehmlichkeiten und macht sie zu einer hervorragenden Wahl für jeden, der eine Immobilie in Gera sucht.
Ausstattung
*Kernsanierung mit allen Gewerken 1997
*jede Wohnung verfügt über einen 25 m² großes licht durchflutet des Wohnzimmer
*4 Wohneinheiten mit Balkon jeweils 4 Raumwohnung (außer EG 3 Raum)
*keine Gewerbeeinheit
*Gepflegter Zustand des Gebäudes
*robusten Granitstein im Treppenhaus
*Fliesen in Flur, Küche, Balkon und Bad
*helle Räume mit schönen Grundriss
*Zentralheizung
*Kellerabteile und Abstellräume (halbe Treppe tiefer) für zusätzlichen Stauraum
Provisionshinweis
Alle Angaben nach bestem Wissen. Irrtum und Zwischenverkauf vorbehalten.
Der Käufer zahlt im Erfolgsfall an die Firma Jörg Breitschuh Immobilien eine
Käufer-Maklerprovision. Die Provision
errechnet sich aus dem beurkundeten Kaufpreis. Dieses Exposé ist eine Vorin-
formation, als Rechtsgrundlage gilt allein der notariell abgeschlossene Kaufver-
trag.
Sonstiges
Für die Richtigkeit und Vollständigkeit der Angaben übernehmen wir keine Gewähr.
Für Rückfragen, weiter Unterlagen oder einen Besichtigungstermin, stehe ich Ihnen jederzeit zur Verfügung!
Die aktuellsten Immobilienangebote finden Sie in unserem Objektfinder unter jbi-gera.de