
Beschreibung
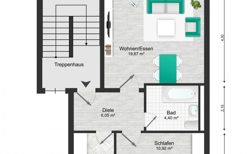
Zum Verkauf steht eine charmante Etagenwohnung mit einer großzügigen Wohnfläche von 49 m², gelegen in einem gepflegten Mehrfamilienhaus mit insgesamt 4 Etagen. Die letzte umfassende Modernisierung fand im Jahr 1998 statt, sodass die Wohnung über eine zeitgemäße Ausstattung verfügt, die den heutigen Wohnansprüchen gerecht wird.
Die Wohnung ist modernisiert und bietet eine angenehme Atmosphäre. Die zentrale Heizungsanlage, betrieben mit Erdgas, sorgt für wohlige Wärme in den kühleren Monaten. Die Ausstattung ist als normal zu bewerten und bietet Ihnen die Möglichkeit, Ihre persönlichen Akzente zu setzen.
Die Lage in Zwickau ermöglicht es Ihnen, die Vorzüge einer urbanen Umgebung zu genießen, während Sie gleichzeitig in einem ruhigen Wohnumfeld leben. Einkaufsmöglichkeiten, Schulen und öffentliche Verkehrsmittel sind in unmittelbarer Nähe und bequem zu erreichen.
Diese Etagenwohnung ist ideal für Singles, Paare oder als Kapitalanlage. Es liegen bereits mehrere Anfragen bezüglich einer Anmietung vor, wir wollten aber auch Eigennutzung und die Möglichkeit geben diese schöne Wohnung zu kaufen.
Lage
Diese attraktive Immobilie befindet sich in einer ruhigen und dennoch zentralen Lage in Zwickau. Die Anbindung an den öffentlichen Nahverkehr ist hervorragend: Der nächste ÖPNV-Haltepunkt ist in nur 3 Gehminuten erreichbar, was Ihnen eine bequeme Mobilität innerhalb der Stadt ermöglicht.
Für Pendler ist die Lage ebenfalls ideal. Der Hauptbahnhof von Zwickau ist in nur 2 Minuten mit dem Zug erreichbar, sodass Sie schnell und unkompliziert in andere Städte gelangen können. Darüber hinaus ist der nächste Flughafen in nur 37 Minuten erreichbar, was Ihnen eine optimale Anbindung für Reisen bietet.
Genießen Sie die Vorzüge dieser Lage, die sowohl Ruhe als auch eine hervorragende Erreichbarkeit bietet. Ideal für Familien, Berufstätige und alle, die das Leben in Zwickau schätzen.
Ausstattung
+Balkon
+Zentralheizung
+Abstellraum
+Gepflegter Zustand des Gebäudes
+Helle Räume mit funktionalem Grundriss
+Zentralheizung
+Kellerabteile für zusätzlichen Stauraum
Provisionshinweis
Alle Angaben nach bestem Wissen. Irrtum und Zwischenverkauf vorbehalten.
Der Käufer zahlt im Erfolgsfall an die Firma Jörg Breitschuh Immobilien eine
Käufer-Maklerprovision. Dieses Exposé ist eine Vorin-
formation, als Rechtsgrundlage gilt allein der notariell abgeschlossene Kaufver-
trag.
Sonstiges
Für Rückfragen, weiter Unterlagen oder ein Besichtigungstermin, stehe ich Ihnen jederzeit zur Verfügung!
Die topaktuelle Immobilienübersicht finden Sie im Objektfinder unter: www.jbi-gera.de nätürlich auch in mobiler Version.
Für die Richtigkeit und Vollständigkeit der Angaben übernehmen wir keine Gewähr.